Description
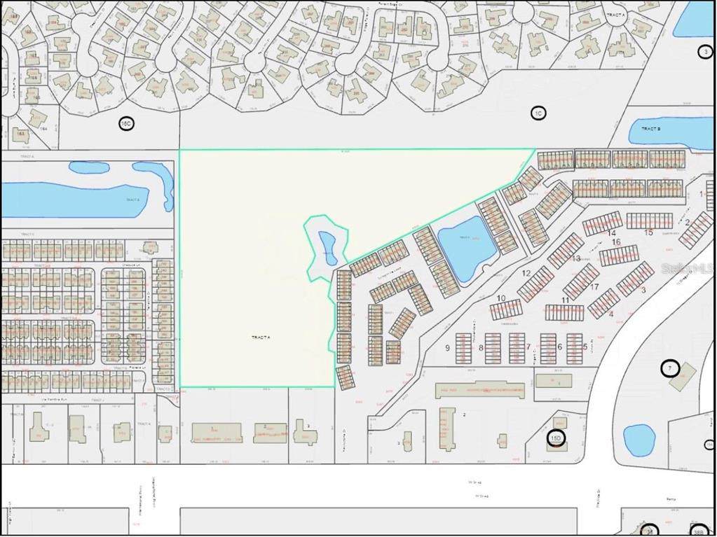
OWNER FINANCING AVAILABLE - 23 acres of land recently priced by our bank at $9.2M once encumbrances are lifted, so this is priced to move fast! Appraisal is in the link below in the folder. This parcel is located in one of the most highly desirable areas in all of Central Florida. Right off of Highway 46, blocks from I4, here's a listing for 23 acres of contiguous land located between three high-end neighborhoods and very nice commercial properties. Currently zoned for 544 residential units and perhaps up to 100's of thousands of commercial SF, but can maybe be rezoned for much more. Has several encumbrances. We have some public records/Due Diligence done, link to all the documents, including appraisal, is at end of these remarks. One scenario is a developer or environmental company that needs wetlands for relocating species needed to be moved promptly. Or, get your attorneys and engineers ready for the entitlement process and rezoning. Super low cost for this parcel, priced to sell quickly. Listing agent is owner, call for more information. Calls are automatically blocked, texting only please. Please review below link prior to texting. Link to due diligence is in the "virtual tour link". All due diligence files are located there including surveys, appraisals, encumbrances, everything.
-
0BEDS
-
22.95ACRES
-
0BATHS
-
01/2 BATHS
School Ratings & Info
Description
OWNER FINANCING AVAILABLE - 23 acres of land recently priced by our bank at $9.2M once encumbrances are lifted, so this is priced to move fast! Appraisal is in the link below in the folder. This parcel is located in one of the most highly desirable areas in all of Central Florida. Right off of Highway 46, blocks from I4, here's a listing for 23 acres of contiguous land located between three high-end neighborhoods and very nice commercial properties. Currently zoned for 544 residential units and perhaps up to 100's of thousands of commercial SF, but can maybe be rezoned for much more. Has several encumbrances. We have some public records/Due Diligence done, link to all the documents, including appraisal, is at end of these remarks. One scenario is a developer or environmental company that needs wetlands for relocating species needed to be moved promptly. Or, get your attorneys and engineers ready for the entitlement process and rezoning. Super low cost for this parcel, priced to sell quickly. Listing agent is owner, call for more information. Calls are automatically blocked, texting only please. Please review below link prior to texting. Link to due diligence is in the "virtual tour link". All due diligence files are located there including surveys, appraisals, encumbrances, everything.
© 2026 My Florida Regional MLS DBA Stellar MLS. All rights reserved. All listings displayed pursuant to IDX. All listing information is deemed reliable but not guaranteed and should be independently verified through personal inspection by appropriate professionals. Listings displayed on this website may be subject to prior sale or removal from sale; availability of any listing should always be independently verified. Listing information is provided for consumers personal, non-commercial use, solely to identify potential properties for potential purchase; all other use is strictly prohibited and may violate relevant federal and state law. Data last updated 2026-04-16T15:48:01.45.
