Description
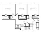
Located in Lake County, Astatula offers residents a serene and picturesque setting surrounded by the beauty of nature. The community itself is situated in close proximity to Little Lake Harris, providing easy access to recreational activities such as boating, fishing, and kayaking. With its peaceful atmosphere and convenient location, Tula Parc offers residents a tranquil retreat while still being within reach of the amenities of larger cities. The Parc floor plan offers superior value at an affordable price. At first glance, lush front yard landscaping invites you to step in and see the beautiful floor plan and interior that awaits. This dream home comes stocked with incredible features including all new kitchen appliances, beautiful granite countertops and an open floor plan that will be enjoyed for years to come. Affordability and style combined means the Parc plan offers more than just the dream of homeownership. A covered entryway leads to a stunning family room and adjoining kitchen covered with fresh granite countertops and upper wood cabinets, perfect for sharing meals and memories alike. The Tula offers four large bedrooms each with its own walk-in closet, which is great for families and guests staying over. On one end of the home, the secluded master bedroom highlights privacy and luxury with its own bathroom and massive walk-in closet! Picture yourself owning a brand new, wide-stretched, move-in ready home with added value already included. Picture yourself living and hosting comfortably in the Parc. The Parc floor plan was designed to surpass all expectations with impressive upgrades included at no extra cost to you. This home includes the CompleteHome package, a modern take on additional style and convenience. An array of energy-efficient Whirlpool appliances, including the refrigerator, stunning granite countertops, 36" upper-wood cabinets with crown molding, Moen faucets and LED flush mount ENERGY STAR kitchen lights are just a few of the remarkable upgrades that complete the kitchen. In addition, programmable thermostats, designer coach lighting, double-pane Low-E vinyl windows and a WiFi-enabled garage door opener give the home features and finishes today's homebuyers are looking for.
-
4BEDS
-
0.11ACRES
-
2BATHS
-
11/2 BATHS
-
2,059SQFT
-
$189$/SQFT
School Information
Description
Located in Lake County, Astatula offers residents a serene and picturesque setting surrounded by the beauty of nature. The community itself is situated in close proximity to Little Lake Harris, providing easy access to recreational activities such as boating, fishing, and kayaking. With its peaceful atmosphere and convenient location, Tula Parc offers residents a tranquil retreat while still being within reach of the amenities of larger cities. The Parc floor plan offers superior value at an affordable price. At first glance, lush front yard landscaping invites you to step in and see the beautiful floor plan and interior that awaits. This dream home comes stocked with incredible features including all new kitchen appliances, beautiful granite countertops and an open floor plan that will be enjoyed for years to come. Affordability and style combined means the Parc plan offers more than just the dream of homeownership. A covered entryway leads to a stunning family room and adjoining kitchen covered with fresh granite countertops and upper wood cabinets, perfect for sharing meals and memories alike. The Tula offers four large bedrooms each with its own walk-in closet, which is great for families and guests staying over. On one end of the home, the secluded master bedroom highlights privacy and luxury with its own bathroom and massive walk-in closet! Picture yourself owning a brand new, wide-stretched, move-in ready home with added value already included. Picture yourself living and hosting comfortably in the Parc. The Parc floor plan was designed to surpass all expectations with impressive upgrades included at no extra cost to you. This home includes the CompleteHome package, a modern take on additional style and convenience. An array of energy-efficient Whirlpool appliances, including the refrigerator, stunning granite countertops, 36" upper-wood cabinets with crown molding, Moen faucets and LED flush mount ENERGY STAR kitchen lights are just a few of the remarkable upgrades that complete the kitchen. In addition, programmable thermostats, designer coach lighting, double-pane Low-E vinyl windows and a WiFi-enabled garage door opener give the home features and finishes today's homebuyers are looking for.
Related Properties
© 2025 My Florida Regional MLS DBA Stellar MLS. All rights reserved. All listings displayed pursuant to IDX. All listing information is deemed reliable but not guaranteed and should be independently verified through personal inspection by appropriate professionals. Listings displayed on this website may be subject to prior sale or removal from sale; availability of any listing should always be independently verified. Listing information is provided for consumers personal, non-commercial use, solely to identify potential properties for potential purchase; all other use is strictly prohibited and may violate relevant federal and state law. Data last updated 2025-11-17T10:47:35.69.
